ANA SAYFA
PROJELER
HAKKIMIZDA
İLETİŞİM
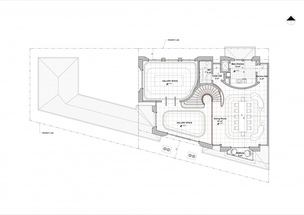
Galiawa Guest House Competition
Kategori
Yarışma
m²
315
İşveren
Galiawa Group
Teslim Tarihi
2025