ANA SAYFA
PROJELER
HAKKIMIZDA
İLETİŞİM
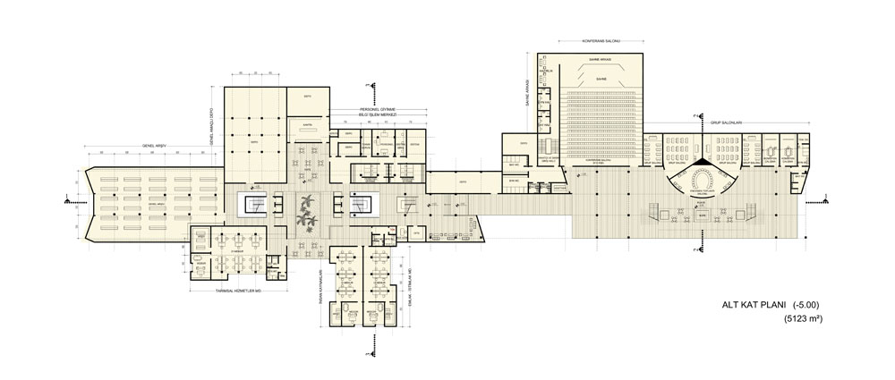
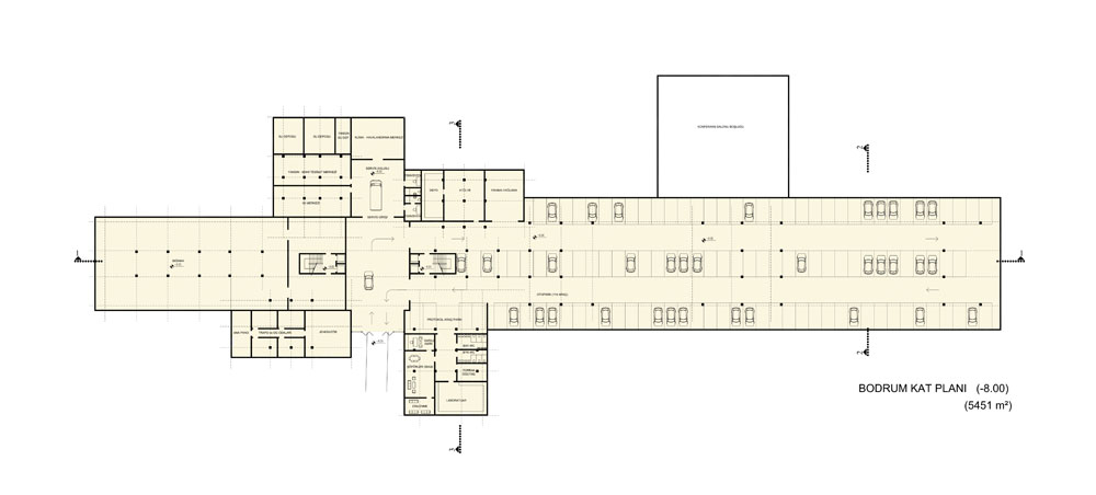
Hatay İl Genel Meclisi Ve İl Özel İdaresi Hizmet Binası
Kategori
Yarışma
m²
10
İşveren
Yarışma
Teslim Tarihi
2011